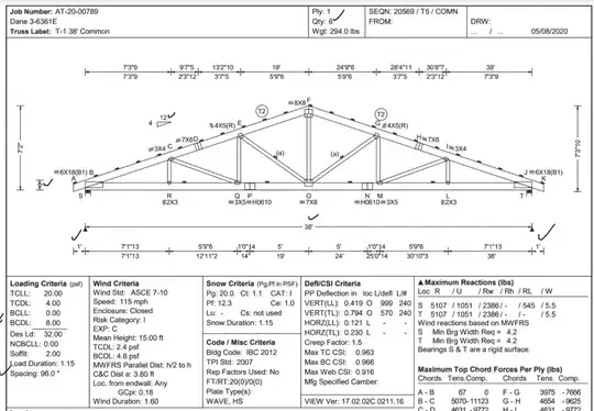
I have a post frame building that was recently constructed where the post and joists have 8 foot on center spacing. The building is 38' x 54' and we had a 2nd floor built on the North end of it which measures 38' x 30. This 2nd floor is to be a framed in and finished "living space". I didn't consider how I was supposed to do a drywall ceiling on the 2nd floor when the trusses are so far apart. I was considering using 1x3" 16' furring strips to span over 2 trusses at 16" on center. I'm afraid that an 8' span will still sag with drywall on it.
My other idea was to put 2x4 8', 16" on center, in between the joists with hangers like these
Would either of these ideas work with what I have? Are there better options?



