| H-13 Sioux | |
|---|---|
![]() | |
| An OH-13 over RIAT, 2022 | |
| Role | Light observation helicopter |
| National origin | United States |
| Manufacturer | Bell Aircraft Bell Helicopter |
| First flight | 8 December 1945 (Bell 47 prototype)[1] |
| Status | Retired |
| Primary users | United States Army United States Air Force United States Navy British Army |
| Number built | At least 2,407 |
| Developed from | Bell 47 |
| Variants | Bell 201 |
| Developed into | Bell 207 Sioux Scout |
The Bell H-13 Sioux is an American single-engine light helicopter built by Bell Helicopter and manufactured by Westland Aircraft under license for the British military as the Sioux AH.1 and HT.2.
Development
In 1947, the United States Army Air Forces (later the United States Air Force) ordered the improved Bell Model 47A. Most were designated YR-13 and three winterized versions were designated YR-13A. The United States Army first ordered Bell 47s in 1948 under the designation H-13. These would later receive the name Sioux.[2]
Initially, the United States Navy procured several Bell 47s, designated HTL-1, between 1947 and 1958. The United States Coast Guard evaluated this model, and procured two HTL-1s for multi-mission support in the New York Harbor. The most common U.S. Navy version of the 47 was designated the HTL-4, and dispenses with the fabric covering on the tail boom. The U.S. Coast Guard procured three HTL-5s in 1952 (similar to the HTL-4 but powered by a Franklin O-335-5 engine) and used these until 1960.[3] The Coast Guard procured two of Bell's Model 47G and designated them HUL-1G in 1959.[3]
The H-13 was one of the principal helicopters used by the U.S. Army during the Korean War, with the H-13D variant being the most prevalent. During the war it was used in a wide variety of roles including observation, reconnaissance, and medivac. It was also used as an observation helicopter early in the Vietnam War, before being replaced by the Hughes OH-6 Cayuse in 1966.
The Bell 47 was ordered by the British Army as the Sioux to meet specification H.240, with licensed production by Westland Helicopters. In order to comply with the terms of its licence agreement with Sikorsky Aircraft, which prevented it building a U.S. competitor's aircraft, Westland licensed the Model 47 from Agusta, who had purchased a license from Bell.[4] the first contract was for 200 helicopters. The first 50 helicopters of the contract were built by Agusta at Gallarate in Italy followed by 150 built by Westland at Yeovil. The first Westland Sioux made its maiden flight on 9 March 1965.[5]
Design
The Sioux is a three-seat observation and basic training helicopter. In 1953 the Bell 47G design was introduced. It can be recognized by the full "soap bubble" canopy (as its designer Arthur M. Young termed it),[6] exposed welded-tube tail boom, saddle fuel tanks and skid landing gear. In its UH-13J version, based on the Bell 47J, it had a metal-clad tail boom and fuselage and an enclosed cockpit and cabin.
The H-13 and its military variants were often equipped with medical evacuation panniers, one to each skid, with an acrylic glass shield to protect the patient from wind.
A single 260 hp Lycoming VO-435 piston engine was fitted to the 47G variant. Fuel was fed from two high-mounted external tanks. A single two-bladed rotor with short inertial stabilising minor blades was used on the Sioux.[5]
Variants
Military
_medevac_inflight_bw.jpg.webp)
- YR-13
- [lower-alpha 1] 28 Bell 47A helicopters procured by the United States Army Air Forces for evaluation. The YR-13 was powered by a 175 hp (130 kW) Franklin O-335-1 piston engine. 10 of the aircraft were transferred to the U.S. Navy for evaluation as the HTL-1, with two HTL-1s later transferred to US Coast Guard.[8]
- YR-13A
- 3 YR-13 aircraft winterized for cold-weather testing in Alaska. Redesignated YH-13A in 1948.[9]
- HTL-2
- US Navy equivalent of the commercial Model 47D. 12 built.[10]
- HTL-3
- US Navy equivalent of the commercial Model 47E, powered by a 200 hp (149 kW) Franklin 6V4-200-C32 engine. Nine built.
- H-13B
- 65 aircraft ordered in 1948 by the U.S. Army.[9] All Army versions were later named Sioux.
- YH-13C
- One H-13B used as engineering testbed. Fitted with skid undercarriage and open, uncovered tailboom.[9]
- H-13C
- 16 H-13B aircraft converted to carry external stretchers in 1952, with skid landing gear and open tail boom of YH-13C.[9]
- H-13D
- Army two-seat version based on commercial model 47D-1, with skid landing gear, stretcher carriers, and Franklin O-335-5 engine. 87 built.[9]
- OH-13E
- H-13D configuration with three-seat aircraft with dual controls. 490 built.[9]
- XH-13F/Bell 201
- Modified Bell 47G powered by a Continental XT51-T-3 (Turbomeca Artouste) turboshaft.[9] The first Bell helicopter powered by a turbine engine.
- OH-13G
- Three-seater based on commercial model 47-G. Introduced a small elevator on the tailboom. 265 delivered to US Army.[11]
- OH-13H/UH-13H
- Based on 47G-2. Equipped with a 250 hp (186 kW) Lycoming VO-435 engine. At least 453 acquired by US Army.[11] UH-13Hs were used by the U.S. Air Force.
- UH-13J
- Two Bell 47J-1 Rangers acquired by the U.S. Air Force for VIP transport of the U.S. President. Originally designated H-13J.
- OH-13K
- Two converted H-13Hs with a larger diameter rotor and a 225 hp (168 kW) Franklin 6VS-335 engine for test evaluation.
- TH-13L
- Originally designated as the Navy HTL-4.
- HTL-5
- Utilized a Franklin O-335-5 engine.
- TH-13M
- Incorporated a small movable elevator. Originally designated as the Navy HTL-6.
- HH-13Q
- Originally the HUL-1G, it was used by the U.S. Coast Guard for search and rescue.
- UH-13R
- Powered by an Allison YT63-A-3 turboshaft engine. Original US Navy designation HUL-1M.
- OH-13S
- Three-seat observation helicopter based on 47G-3B to replace the OH-13H. 265 received by US Army.[11]
- TH-13T
- Two-seat instrument trainer for the U.S. Army based on the 47G-3B-1, powered by 270 hp (201 kW) Lycoming TVO-435-D1B. 411 purchased.[11]
- Sioux AH.1
- General purpose helicopter for the British Army, 50 built by Agusta (Agusta-Bell 47G-3B1) and 250 built by Westland (Westland-Agusta-Bell 47G-3B1).[12] A small number also used by 3 Commando Brigade Air Squadron of the Royal Marines.
- Sioux HT.2
- Training helicopter for the Royal Air Force, 15 built by Westland.
- Texas Helicopter M74 Wasp
- Texas Helicopter Corporation single-seat conversion of OH-13E helicopters for agricultural use, powered by 200 hp (150 kW) Lycoming TVO-435-A1E engines. Certified 1976.[13]
- Texas Helicopter M74A
- Texas Helicopter Corporation single-seat conversion of OH-13H helicopters for agricultural use, powered by Lycoming TVO-435 engine rated at 240 hp (180 kW) for 2 minutes. Certified 1977.[13]
- Texas Helicopter M79S Wasp II
- Texas Helicopter Corporation conversion for agricultural use, with tandem seating and stub wing fuel tanks. Powered by Lycoming TVO-435 engine rated at 270 hp (200 kW) for 5 minutes.[13]
- Texas Helicopter M79T Jet Wasp II
- Texas Helicopter Corporation conversion of Bell 47G helicopters for agricultural use, powered by 420 hp (310 kW) Soloy-Allison 250-C20S engines.
Operators

- Royal Canadian Navy[19]
- VX-10 Squadron
.jpg.webp)

- South Vietnam Air Force operated several helicopters since April 1956.
- 1st Helicopter Squadron
- 2nd Helicopter Squadron
- Sri Lanka Air Force
- No.5 Squadron[37]

Surviving aircraft
Canada
- RCN 1387 – HTL-6 on static display at the Canada Aviation and Space Museum in Ottawa, Ontario.[48]
Germany
- 58-5348 – OH-13H on static display at the Hubschraubermuseum Bückeburg in Bückeburg, Lower Saxony.[49]
- XT548 – Sioux AH.1 on static display at the Flugausstellung Hermeskeil in Hermeskeil, Rhineland-Palatinate.[50][51]
New Zealand
- H-13 Sioux (Bell 47-G3) registration NZ3705 Sioux on display at the Royal New Zealand Air Force Museum at Wigram. The aircraft is displayed in its RNZAF colour scheme when it was retired from service in 2012. NZ3705[52]
Pakistan
- OH-13 on static display at the Pakistan Army Museum in Rawalpindi, Punjab.
South Africa
- XT562 – Bell 47 on static display at Port Elizabeth Branch of the South African Air Force Museum in Port Elizabeth, Eastern Cape.[53]
South Korea

- H-13 on static display at the War Memorial of Korea in Seoul.
Spain
- OH-13H on static display at the Aeronautical Laboratory of the School of Industrial and Aeronautical Engineering of the Polytechnic University of Catalonia in Terrassa, Barcelona.
Taiwan
- 1101 – OH-13H on display at Aviation Education Exhibition Hall, a subsidiary of the Republic of China Air Force Academy.[38]
- 2110 – OH-13H on display at Longtan Sports Park at Taoyuan City, Taiwan.[54][55]
Thailand
- 56-2182/H7-9/15 – OH-13H on display at the Royal Thai Air Force Museum in Bangkok, Thailand.[56][57]
United Kingdom
Airworthy
- XT131 (G-CICN) - Sioux AH.1 airworthy with the Historic Army Aircraft Flight based at AAC Middle Wallop.[58]
On display
- XT148 – Sioux AH.1 under restoration at the North East Land, Sea and Air Museums in Sunderland, Tyne and Wear.[59]
- XT190 – Sioux AH.1 on static display at The Helicopter Museum in Weston-super-Mare, Somerset.[60][61]
- XT200 – Sioux AH.1 on static display at the Newark Air Museum in Newark, Nottinghamshire.[62]
United States

.jpg.webp)
- Airworthy
- OH-13H
- 58-1528 – operated by Ocean Air Inc. of Eugene, Oregon.[63][64]
- TH-13T
- 65-8040 – based at the Cavanaugh Flight Museum in Addison, Texas. It is painted as a H-13D.[65][66] Removed from public display when the museum indefinitely closed on 1 January 2024. To be moved to North Texas Regional Airport in Denison, Texas.[67]
- On display
- H-13B
- 48-0796 – South Carolina Military Museum in Columbia, South Carolina. It is the first H-13B airframe, serial number 101, and came off the production line in mid-July 1948.[68][69]
- H-13D
- OH-13D
- 51-2456 - United States Army Medical Department Museum located on base at Fort Sam Houston, in San Antonio, Texas.[72]
- OH-13E
- 51-13934 – Evergreen Aviation & Space Museum in McMinnville, Oregon.[73][74]
- 51-14010 – U.S. Army Transportation Museum at Joint Base Langley–Eustis near Newport News, Virginia.[75]
- 51-14062 or 51-14077 – Aviation Hall of Fame and Museum of New Jersey in Teterboro, New Jersey.[76]
- 51-14175 – Yanks Air Museum in Chino, California.[77][78]
- 51-14193 – United States Army Aviation Museum in Enterprise, Alabama.[70][79]
- 51-14218 – United States Army Aviation Museum in Enterprise, Alabama.[70][80]
- OH-13G
- H-13H
- 58-1520 – South Dakota Air and Space Museum in Box Elder, South Dakota.[83]
- OH-13H
- 59-4949 - in use as instructional airframe at Portland Community College in Portland, Oregon.
- UH-13H
- 56-2217 – Castle Air Museum in Atwater, California.[84][85]
- OH-13S
- 63-9085 – Texas Air & Space Museum in Amarillo, Texas. It wears a "M*A*S*H" paint scheme and is on loan from Amarillo College.[86]
- 64-15338 – Flying Leatherneck Aviation Museum in San Diego, California.[87]
- 64-15393 – Intrepid Sea, Air & Space Museum in New York, New York.[88]
- TH-13T
- 67-15963 – Pueblo Weisbrod Aircraft Museum in Pueblo, Colorado. It has a "M*A*S*H" paint scheme.[89][90]
- 67-17053 – Hill Aerospace Museum in Ogden, Utah.[91]
- HTL-2
- 122952 – Pima Air & Space Museum in Tucson, Arizona.[92]
- HTL-4
- 128911 – National Museum of Naval Aviation in Pensacola, Florida.[93]
- HTL-6
- 142377 – National Museum of Naval Aviation in Pensacola, Florida.[93]
- 142394 – Flying Leatherneck Aviation Museum in San Diego, California.[87]
- HTL-7
- 145842 – Pima Air & Space Museum in Tucson, Arizona.[94]
- Unknown
- Fantasy of Flight in Polk City, Florida has an airworthy XH-13F.[95][96][97]
- U.S. Veterans Memorial Museum, Huntsville, Alabama has an H-13D on display.[98]
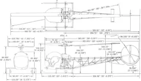
Specifications (Sioux AH.1)
Data from Newark Air Museum,[99] Britains Small Wars.[100]
General characteristics
- Crew: 1
- Capacity: 3
- Length: 31 ft 7 in (9.63 m)
- Height: 9 ft 8 in (2.95 m)
- Gross weight: 2,952 lb (1,339 kg)
- Powerplant: 1 × Lycoming TVO-435-A1A six-cylinder, horizontally opposed piston, 260 hp (190 kW)
- Main rotor diameter: 37 ft 0 in (11.28 m)
Performance
- Maximum speed: 105 mph (169 km/h, 91 kn)
- Cruise speed: 84 mph (135 km/h, 73 kn)
- Range: 273 mi (439 km, 237 nmi)
- Service ceiling: 16,100 ft (4,900 m)
Armament
Twin .30 in (7.62 mm) Machine guns[lower-alpha 2]
Popular culture
The H-13 has appeared, and played key roles, in many film and television productions. It has been associated with both the M*A*S*H TV series (1972–1983) and the film of the same name (1970), prominently featuring the H-13 in its opening credits, and played a central role in the series finale, which still holds the
record as the highest rated single episode broadcast in America.[102][103] The series helped popularize the H-13 as the helicopter most people now associate with the Korean War.[104] The H-13 also played a key role in the Whirlybirds TV series (1957–1959).[105][106]
See also
Related development
Aircraft of comparable role, configuration, and era
Notes
- ↑ In the military of the United States, the Bell 47 carried several designations prior to 1962. R-13 was the first designation by the United States Army Air Forces, while the Navy designated their training version as HTL. In 1948, the United States Air Force changed the designation to H-13 which was also adopted by the Army, adding the name Sioux. The Navy and Coast Guard designated utility models as HUL. In 1962, under a joint designation system created by the Department of Defense, the designations for all of the helicopters were changed to a mission symbol followed by the vehicle type designator creating a two-letter prefix (OH, UH, XH, etc.), but the Bell 47 retained its original series number, 13 and the Army's popular name. To denote different models, a letter suffix was appended to the designation.[7]
- ↑ The OH-1 was capable of carrying twin M37C .30 caliber machine guns, or twin M60 machine guns.[101] They rarely did so however, because according to a Military Channel documentary on the AH-1 attack helicopter ("World's Deadliest Aircraft" series), the guns' recoil was too great a strain on the engines.
References
Footnotes
- ↑ Gunston 1986, p. 117
- ↑ Donald, David, ed. "Bell Model 47". The Complete Encyclopedia of World Aircraft. Barnes & Nobel Books, 1997. ISBN 0-7607-0592-5.
- 1 2 Pearcy, Arthur (1989). A History of Coast Guard Aviation. Naval Institute Press. ISBN 0-87021-261-3.
- ↑ James 1991, p. 55
- 1 2 3 "westland sioux — Helicopter Database". Retrieved 2009-01-17.
- ↑ Arthur M. Young. Arthur Young on the Helicopter (Part 2) (YouTube) (YouTube). Arthur M. Young. Event occurs at 10:15 to 11:45. Archived from the original on 2021-12-15. Retrieved April 8, 2016.
I thought the bubble was a great idea, and we tried it. It consisted of taking a large sheet of Plexiglas, and a plywood form, cut for the final dimension for the outside of the bubble, then heating the Plexiglas, putting it under the plywood form, letting air pressure come up through the middle, and it would blow just like a soap bubble. And, then we had a gauge saying how far to blow, and when it reached that point, we turned off the air pressure.
- ↑ Derek Bridges. "U.S. Military Aircraft and Weapon Designations". Archived from the original on 6 March 2007. Retrieved 2007-04-17.
- ↑ Pelletier 1992, pp. 63, 70, 72
- 1 2 3 4 5 6 7 Harding 1990, p. 30
- ↑ Pelletier 1992, p. 72
- 1 2 3 4 Harding 1990, p. 31
- ↑ James 1991, pp. 484–485
- 1 2 3 Taylor 1980, pp. 446–447
- ↑ "Argentine Army Aviation". Retrieved 7 February 2013.
- 1 2 3 4 "FlightGlobal World Helicopter Market – 1968". Flight International. p. 48. Retrieved 2013-02-05.
- ↑ "Argentina – Coast Guard". Demand media. Retrieved 7 February 2013.
- ↑ "AAF Bell OH-13H Sioux (47)". Demand media. Retrieved 7 February 2013.
- ↑ "FlightGlobal World Helicopter Market – 1968 "B"". Flight International. Retrieved 7 February 2013.
- ↑ "Bell 47G HTL-6". technomuses.ca. Archived from the original on 9 April 2008. Retrieved 7 February 2013.
- 1 2 3 "FlightGlobal World Helicopter Market – 1968 Pg 50". Retrieved 2013-02-05.
- 1 2 3 4 "FlightGlobal World Helicopter Market – 1968 Pg 51". Retrieved 2013-02-05.
- ↑ Boulay 1984, p. 5
- ↑ Vetter 2005, p. 20
- ↑ "Deutsches Museum". Retrieved 7 February 2013.
- 1 2 3 4 5 6 7 8 "FlightGlobal World Helicopter Market – 1968 Pg 52". Flight International. Retrieved 2013-02-05.
- ↑ "Greece Air Force Bell-47G". Demand media. Retrieved 7 February 2013.
- ↑ Hagedorn 1993, p. 78
- ↑ "Italian Air Force Bell-47G". airliners. Retrieved 7 February 2013.
- 1 2 3 4 5 "FlightGlobal World Helicopter Market – 1968 Pg 53". Retrieved 2013-02-05.
- ↑ "Tentara Udara Diraja Malaysia Bell 47-G". Retrieved 7 February 2013.
- ↑ "Malta Air Force Aircraft Types". aeroflight.co.uk. Archived from the original on 4 March 2016. Retrieved 7 February 2013.
- ↑ "B47G-3B-2 Sioux". airforce.mil.nz. Retrieved 7 February 2013.
- 1 2 3 4 5 "FlightGlobal World Helicopter Market – 1968 Pg 54". Retrieved 2013-02-05.
- ↑ "World Air News: Peruvian Navy Bells". Air Pictorial. Vol. 25, no. 2. February 1963. p. 41.
- ↑ Cooper 2017, p. 31
- 1 2 3 4 "FlightGlobal World Helicopter Market – 1968 Pg 55". Retrieved 2013-02-05.
- ↑ Fontanellaz, Adrien; Cooper, Tom (2018). Paradise Afire: The Sri Lankan War, 1971-1987. Helion Limited. p. 18, 24. ISBN 9781912390342.
- 1 2 "二樓懸掛展示區-航空教育展示館". www.aeeh.com.tw. Retrieved 2021-02-07.
- ↑ "RTAF history" (PDF). thai-aviation.net. Archived from the original (PDF) on 4 November 2016. Retrieved 7 February 2013.
- ↑ "Thai Bell-OH-13H-Sioux". Demand media. Retrieved 7 February 2013.
- ↑ FLIGHT International. 23 November 1972. p. 754.
- ↑ "Bell H-13 Sioux Helicopter -USAF". armedforcesmuseum.com. Archived from the original on 2 March 2014. Retrieved 7 February 2013.
- ↑ "US Army OH-13". olive-drab.com. Retrieved 7 February 2013.
- ↑ "Monthan Memories". dhc-2.com. Retrieved 7 February 2013.
- ↑ "USCG History aircraft". Retrieved 7 February 2013.
- 1 2 3 "FlightGlobal World Helicopter Market – 1968 Pg 60". Retrieved 2013-02-05.
- ↑ "World Air Forces 1975 pg 314". flightglobal.com. Retrieved 1 July 2014.
- ↑ "BELL 47G HTL-6". Canada Aviation and Space Museum. Canada Science and Technology Museums Corporation. Retrieved 2 March 2017.
- ↑ "Bell 47G-2 (H-13 SIOUX)". Das Hubschraubermuseum Bückeburg. Retrieved 2 March 2017.
- ↑ "[Homepage]". Flugausstellung (in German). Retrieved 2 March 2017.
- ↑ "Airframe Dossier - Bell47 / H-13 Sioux, s/n XT548 RAF, c/n WA-437". Aerial Visuals. AerialVisuals.ca. Retrieved 2 March 2017.
- ↑ "Bell 47G-3B-1 Sioux". Air Force Museum of New Zealand. Retrieved 22 June 2020.
- ↑ "History of the Port Elizabeth SAAF Museum". South African Air Force Museum. Retrieved 2 March 2017.
- ↑ 幸美 (kimidodo). "LongTan@龍潭運動公園A飛彈坦克直升機(桃園) @ 蝸牛漫步"@_Kimidodo's Taipei Free Walk :: 痞客邦 ::". 蝸牛漫步"@_Kimidodo's Taipei Free Walk (in Chinese (Taiwan)). Retrieved 2021-02-07.
- ↑ 白鷺鷥 (kimidodo) (2016-12-10). "【陸軍】教練直升機TH-55C". 隨意窩 Xuite日誌. Retrieved 2021-02-07.
- ↑ "Building 5:Helicopters and last propeller fighter". Royal Thai Air Force Museum. Archived from the original on 26 October 2013. Retrieved 19 August 2016.
- ↑ "Airframe Dossier - Bell OH-13H Sioux, s/n H7-9/15 RTAF, c/n 1894". Aerial Visuals. AerialVisuals.ca. Retrieved 19 August 2016.
- ↑ "Sioux".
- ↑ "Exhibits". North East Aircraft Museum. North East Land, Sea and Air Museums. Retrieved 2 March 2017.
- ↑ "The Collection [Europe]". The Helicopter Museum. Archived from the original on 9 May 2015. Retrieved 2 March 2017.
- ↑ "Airframe Dossier - Bell47 / H-13 Sioux, s/n XT190 RAF, c/n WA-349". Aerial Visuals. AerialVisuals.ca. Retrieved 2 March 2017.
- ↑ "Aircraft List". Newark Air Museum. Retrieved 2 March 2017.
- ↑ "Airframe Dossier - Bell OH-13H Sioux, s/n 58-1528 US, c/n 2292, c/r N9025". Aerial Visuals. Retrieved 15 December 2020.
- ↑ "FAA REGISTRY [N9025]". Federal Aviation Administration. U.S. Department of Transportation. Retrieved 15 December 2020.
- ↑ "Aircraft". Cavanaugh Flight Museum. Retrieved 2 March 2017.
- ↑ "FAA REGISTRY [N55ER]". Federal Aviation Administration. U.S. Department of Transportation. Retrieved 2 March 2017.
- ↑ Sullivan, Cole (1 January 2024). "Historic Addison flight museum announces closure". WFAA. Dallas, Texas. Retrieved 4 January 2024.
- ↑ "H-13B "Sioux" Helicopter". South Carolina Military Museum. South Carolina Military Museum. Retrieved 19 August 2016.
- ↑ "Airframe Dossier - Bell H-13D Sioux, s/n 48-0796 US, c/n 101, c/r N8310". Aerial Visuals. AerialVisuals.ca. Retrieved 19 August 2016.
- 1 2 3 "Rotary Wing". United States Army Aviation Museum. Army Aviation Museum Foundation, Inc. Archived from the original on 5 November 2016. Retrieved 19 August 2016.
- ↑ "Airframe Dossier - Bell H-13C Sioux, s/n 48-0845 US, c/n 129". Aerial Visuals. AerialVisuals.ca. Retrieved 19 August 2016.
- ↑ "Vehicles". U.S. Army Medical Department Museum. Retrieved 19 August 2016.
- ↑ "Helicopters". Evergreen Aviation & Space Museum. Evergreen Museum. Archived from the original on 31 May 2017. Retrieved 2 March 2017.
- ↑ "Airframe Dossier - Bell47 / H-13 Sioux, s/n 51-13934 US Army". Aerial Visuals. AerialVisuals.ca. Retrieved 2 March 2017.
- ↑ "Airframe Dossier - Bell OH-13E Sioux, s/n 51-14010 US, c/n 0775". Aerial Visuals. AerialVisuals.ca. Retrieved 3 March 2017.
- ↑ Baugher, Joe (1 February 2017). "1951 USAF Serial Numbers". JoeBaugher.com. Retrieved 3 March 2017.
- ↑ "Bell 47D-1 Sioux (OH-13E)". Yanks Air Museum. 2017-02-04. Retrieved 2019-12-22.
- ↑ "Airframe Dossier - Bell OH-13E Sioux, s/n 51-14175 US, c/n 940, c/r N55230". Aerial Visuals. AerialVisuals.ca. Retrieved 19 August 2016.
- ↑ "Airframe Dossier - Bell OH-13E Sioux, s/n 51-14193 US, c/n 958". Aerial Visuals. AerialVisuals.ca. Retrieved 19 August 2016.
- ↑ "Airframe Dossier - Bell OH-13E Sioux, s/n 51-14218 US, c/n 993". Aerial Visuals. AerialVisuals.ca. Retrieved 19 August 2016.
- ↑ "Bell H-13G "Sioux"". Wings of Freedom Aviation Museum. Wings of Freedom Aviation Museum. Retrieved 19 August 2016.
- ↑ "Airframe Dossier - Bell OH-13G Sioux, s/n 52-7833 US, c/n 1060". Aerial Visuals. AerialVisuals.ca. Retrieved 19 August 2016.
- ↑ "Exhibits". South Dakota Air and Space Museum. Archived from the original on 6 August 2017. Retrieved 15 December 2020.
- ↑ "Aircraft on Display". Castle Air Museum. Castle Air Museum. Archived from the original on 14 November 2016. Retrieved 19 August 2016.
- ↑ "Bell UH-13H 'Sioux' SN: 56-2217". Aviation Enthusiast Corner. Archived from the original on 12 October 2016. Retrieved 19 August 2016.
- ↑ "Bell OH-13S Sioux 63-9085 N9263Z". Texas Air & Space Museum. Archived from the original on 12 October 2016. Retrieved 19 August 2016.
- 1 2 "Aircraft Listing" (PDF). Flying Leathernecks. Retrieved 15 December 2020.
- ↑ "Airframe Dossier - Bell OH-13S Sioux, s/n 64-15393 US". Aerial Visuals. AerialVisuals.ca. Retrieved 3 March 2017.
- ↑ "Actual Aircraft on Display in Pueblo". Pueblo Weisbrod Aircraft Museum. Archived from the original on 25 December 2016. Retrieved 19 August 2016.
- ↑ "Airframe Dossier - Bell47 / H-13 Sioux, s/n 67-15963 USAF, c/r N14941". Aerial Visuals. AerialVisuals.ca. Retrieved 19 August 2016.
- ↑ "Bell TH-13T "Sioux"". Hill Air Force Base. Retrieved 19 August 2016.
- ↑ "SIOUX". Pima Air & Space Museum. PimaAir.org. Retrieved 19 August 2016.
- 1 2 "Sioux on Display". National Naval Aviation Museum. Naval Aviation Museum Foundation. December 16, 2013. Retrieved 19 August 2016.
- ↑ "SIOUX". Pima Air & Space Museum. PimaAir.org. Retrieved 19 August 2016.
- ↑ "1954 Bell 47G". Fantasy of Flight. Fantasy of Flight. Retrieved 2 March 2017.
- ↑ "Airframe Dossier - Bell47 / H-13 Sioux, s/n 56-143170 US Army, c/n 1685, c/r N147DP". Aerial Visuals. AerialVisuals.ca. Retrieved 3 March 2017.
- ↑ "FAA REGISTRY [N147DP]". Federal Aviation Administration. U.S. Department of Transportation. Retrieved 3 March 2017.
- ↑ "Bell H-13D Helicopter". U.S. Veterans Memorial Museum. U.S. Veterans Memorial Museum. Retrieved 19 August 2016.
- ↑ "Newark Air Museum — Westland Sioux AH.1". Retrieved 2009-01-17.
- ↑ "Britains Small Wars". Archived from the original on 31 December 2008. Retrieved 2009-01-17.
- ↑ U.S. Helicopter Armament Subsystems
- ↑ "Top 100 Rated TV Shows Of All Time". TV by the Numbers. March 21, 2009. Archived from the original on March 19, 2020. Retrieved April 1, 2020.
- ↑ "Saints' win over Colts in Super Bowl XLIV is most-watched television program ever". USA Today. February 8, 2010.
- ↑ Hughes, Kaylene. "Army helicopters in Korea, 1950 to '53". army.mil. Retrieved 1 July 2021.
- ↑ "M*A*S*H". rotaryaction.com. Archived from the original on 10 March 2016. Retrieved 6 April 2016.
- ↑ "Whirlybirds". rotaryaction.com. Archived from the original on 13 March 2016. Retrieved 12 April 2016.
Bibliography
- Boulay, Phillipe (November 1984). "Le vol de Gendarme". Le Fana de l'Aviation (in French). No. 180. pp. 4–7.
- Cooper, Tom (2017). Hot Skies Over Yemen, Volume 1: Aerial Warfare Over the South Arabian Peninsula, 1962-1994. Solihull, UK: Helion & Company Publishing. ISBN 978-1-912174-23-2.
- Donald, David (1997). The Complete Encyclopedia of World Aircraft. NY, NY: Barnes & Noble. ISBN 0-7607-0592-5.
- Elliott, Bryn (May–June 1999). "On the Beat: The First 60 Years of Britain's Air Police, Part Two". Air Enthusiast (81): 64–69. ISSN 0143-5450.
- Frawley, Gerard (2003). The International Directory of Civil Aircraft, 2003–2004. Fyshwick, ACT, Australia: Aerospace Publications Pty Ltd. ISBN 1-875671-58-7.
- Gunston, Bill (1986). American Warplanes. New York: Crown Publishers Inc. ISBN 0-517-61351-4.
- Hagedorn, Daniel P. (1993). Central American and Caribbean Air Forces. Tonbridge, Kent, UK: Air-Britain (Historians) Ltd. ISBN 0-85130-210-6.
- Harding, Stephen (1990). US Army Aircraft since 1947. Shrewsbury, UK: Airlife Publishing. ISBN 1-85310-102-8.
- Hatch, Paul F. (December 1984). "Air Forces of the World: Zambian Air Force". Air Pictorial. Vol. 46, no. 12. pp. 457–458.
- James, Derek N. (1991). Westland Aircraft since 1915. London: Putnam. ISBN 0-85177-847-X.
- Mutza, Wayne (1995). H-13 Sioux Mini in Action. Carrollton, TX, USA: Squadron/Signal Publications. ISBN 0-89747-345-0.
- Pelletier, Alain J (1992). Bell Aircraft since 1935. Annapolis, Md: Naval Institute Press. ISBN 1-55750-056-8.
- Riley, David (February 1958). "French Helicopter Operations in Algeria". Marine Corps Gazette: 21–26.
- Shrader, Charles R. (1999). The first helicopter war: logistics and mobility in Algeria, 1954–1962. Westport, CT: Praeger. ISBN 0-275-96388-8.
- Spenser, Jay P. (1998). Whirlybirds a history of the U.S. helicopter pioneers. Seattle: University of Washington Press in association with Museum of Flight. ISBN 0-295-98058-3.
- Taylor, John W. R., ed. (1980). Jane's All The World's Aircraft 1980-81. London: Jane's Publishing. ISBN 0-7106-0705-9.
- Taylor, Michael John Haddrick (1989). Jane's encyclopedia of aviation. New York: Portland House. ISBN 0-517-69186-8.
- United States, Headquarters Department of the Army, Army Concept Team in Vietnam. Final Report of Essential Load of Scout Helicopters. Saigon, Vietnam: Army Concept Team in Vietnam, 1966.
- Vetter, Frank (2005). "Debrief: German Border Police 50th anniversary". International Air Power Review. Vol. 17. pp. 20–21. ISSN 1473-9917.
External links
- Bell 47.net
- Bell 47 Project: University of Toronto at the Wayback Machine (archived January 30, 2009)
- Model 47G specs from The International Directory of Civil Aircraft by Gerard Frawley
.jpg.webp)

