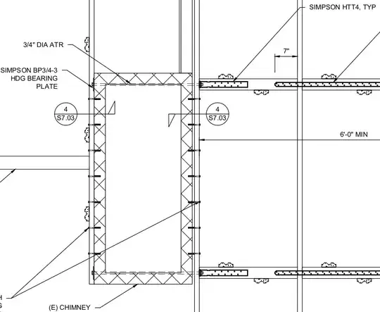
A structural engineer who designed our earthquake retrofit instructed us to put 3/4 all-threaded-rod (ATR) through the chimney at the rafter line on either side of the chimney, back them with Simpson BP3/4-3's on the outside, and anchor them with HTT5-3/4's on the inside of the rafters to 4x6 perpendicular blocking.
The chimney was built in ~1950 has 3 flues. I believe the chimney is a single-brick-width all the way around. The roof is a slick metal roof and we would prefer to minimize working from the roof.
Question: What would you suggest for procedure and tooling to accomplish this?
- How do you keep the holes on the inside and outside at the level with respect to the other?
- There are many masonry bits available, is there a certain type you would suggest?
- Drill from the outside and inside, or drill through with an extra long bit/extension? (The chimney is ~28" thick, IIRC.)
- For 3/4" ATR we were thinking to use a 7/8" bit to provide ~1/16" space around the ATR.
- Is this the right size bit diameter?
- What kind of compound would you use to seal around the ATR?
- Safety considerations?
- Other considerations?
The Chimney:
Approximate drill points are drawn in green:
Engineering Drawing:
You can see the 3/4 ATR drawn in dashed lines at the top and bottom of the chimney. Note that detail 4/S7.03 is not relevant to this SE question:

