I've tried replacing a Honeywell mechanical T6360 with this Iolloi Wi-Fi (Alexa compatible) cheap thermostat. However, when I wired the mains (UK) N and L to the appropriate terminals nothing happened, so I tried the the wire from pin 3 of the Honeywell in terminals 3,4,5 and 6 yet still get nothing. Can anyone offer any advice or is the unit perhaps faulty?
Asked
Active
Viewed 84 times
1 Answers
2
Attaching wires to various terminals is unlikely to solve your issue or determine if the new thermostat is faulty, it needs to be wired correctly to operate correctly. If your thermostat is using line voltage (230VAC, apparently) it is dangerous to do this kind of testing.
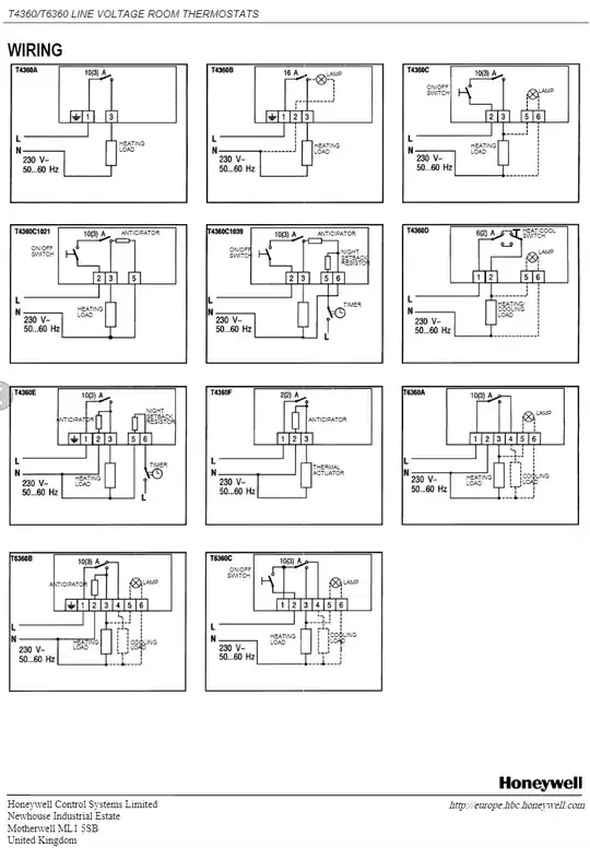
Line 3 from your Honeywell looks to be typically a heating or cooling load in most configurations, (Line connects to terminal 1 or 2, is switched by the thermostat, and outputs on terminal 3 to the heater/AC).
The old Honeywell thermostat has several possible configurations though; maybe identifying which of those you had will help you wire up the new one correctly (safely).
Fredric Shope
- 4,955
- 4
- 22
- 35


