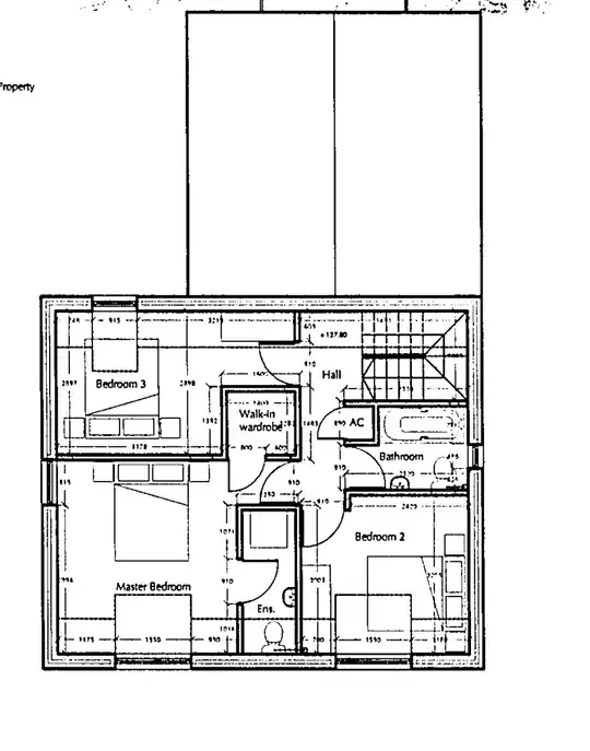
Can someone please help acertain whether the walls highlighted in red are load bearing? One of them feels quite solid when I am knocking on it but I am not sure how to tell. The one highlighted in yellow is also very solid feeling but it shows as a thin wall on the blueprints so not sure..
Asked
Active
Viewed 45 times

