5

We are trying to get hot water for a 3 bed, 2 bathroom, 1200 sq ft house. I need the hot water for the two bathrooms, the kitchen, dishwasher and laundry washer.

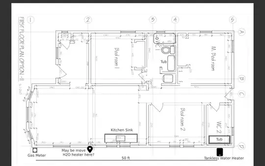
I wanted to install an exterior tankless water heater that is about 50 ft away from the gas meter. The existing pipe size is 3/4 inches. The tankless water heater that I was looking to install is a high efficiency 199K BTU non-condensing Rinnai that has 9.8GPM. I have one furnace (space heater) and standard size stove that also use gas. The furnace is a 60K BTU GoodMan and the stove is GE with each 4 burners about 9K BTU.

Is it feasible to install that tankless gas water heater?

enter image description here

enter image description here

isherwood
  • 158,133
  • 9
  • 190
  • 463
Rose
  • 265
  • 2
  • 7

2 Answers2

7

This typical chart shows 50 feet 3/4" = 151 kBTU (technically cubic feet but, subject to a bunch of variables, basically 1 cubic foot = 1,000 BTU).

There are some other factors as well which could make things worse. If all of your usage (200 kBTU (the 199 game is simply because once you hit 200 the rules change, so that's why everyone maxes out at 199, so round it to keep things simple) + 60 kBTU + 36 kBTU) - call it 300,000 BTU as a nice round number. That needs a bit more than 1" (so 1-1/4") at 50 feet.

In any case, it doesn't look like 3/4" can properly supply even the tankless, not counting the furnace and stove. It is likely, but not guaranteed, that your overall service can handle 300 kBTU, but it is critical to check that before you start on any new pipe installation.

But seriously, this is similar to the problem of large electric tankless - the demand is HUGE. Unless you truly need unlimited supply, tank is the way to go. Two tanks if you need to - typical is 30,000 to 40,000 BTU each.

Also note that capacity will depend on input and output temperatures. Using this 199 kBTU 9.8 GPM Renai from Home Depot as an example, and a relatively safe (but still hot) output temperature of 120 F:

  • 9.7 GPM at a 30 degree rise - if you start at 90 F! Not realistic at all.
  • 6.6 GPM at a 50 degree rise - if you start at 70 F. That might work in the summer in some places.
  • 4.7 GPM at a 70 degree rise - if you start at 50 F. That is realistic in a lot of places in the summer and some places year-round.
  • 4.1 GPM at an 80 degree rise - if you start at 40 F. That's more realistic for a lot of places including the winter.

So you have to look at your real needs. Most people don't actually need 9 GPM. But you have to figure out if something under 5 GPM is really enough for your needs or not.

manassehkatz-Moving 2 Codidact
  • 139,495
  • 14
  • 149
  • 386
3

Given there are no doors on this side of the house it looks like an easy solution: run a new length of 1" pipe outdoors, dedicated for use by the water heater, from the gas meter to the desired heater location anywhere on that side of the house. Front, rear, or middle -- all are doable.

Time-to-hot-water is a good consideration. My own master bath is relatively far from the heater. If I want to rinse my mouth and wash my face with warm water, I have to let it run at the sink the entire length of time it takes to brush my teeth. The delay when I'm preparing to shower is much less on account of the shower/tub filler having much higher flow than the sink does.

I have a Rinnai that's rated around 7 GPM - have been using it for 17 years now. My practice is to set it to 106 when I shower. If somebody turns on another faucet while I'm in the shower the pressure and flow drop but the temperature holds steady. My model, and I presume Rinnai generally, automatically reduces the flow as much as needed to maintain the set temperature. Your 9 GPM-rated unit might not reduce the flow so noticeably as my 7 GPM-rated unit does.

Paint the new pipe to match the house and it'll blend right in.

Greg Hill
  • 35,866
  • 42
  • 91