I am building a kitchen floor for my cottage house. I need the new rim joists and floor joists to be 2x12s. The floor joists will be at 12" OC and hang on Simpson Strong-Tie LU210 Galvanized Face-Mount Joist Hangers. All will be screwed following Simpsons' guidelines.
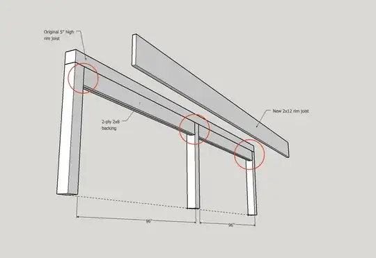
The picture attached shows one of the kitchen walls where the original 5" "rim joist" stands on two 5"x5" posts. The red circles on the picture identifies the connections I'm asking information about.
As illustrated, I plan on using 2-ply 2x8s to serve as backing for the new 2x12 rim joist I want to install, because the original rim joist is only 5" high. The posts are 8' apart. I want to be sure to take into account the vertical load, but also the lateral forces that the rim joist will exert on the 2-ply 2x8.
I considered the Simpson Strong-Tie HUC28-2, mostly because their concealed flanges permits the 2-ply 2x8 to sit flush with the face of the posts, which is essential for the fitting of the new rim joist, but I can't find information to confirm it's the appropriate option for the job. Would 6" lag screws be a better option?
Thanks.

