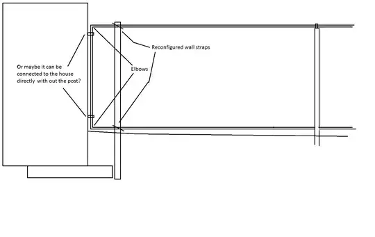
I'm about to begin setting all of my terminal posts for a chain link fence. However, upon digging the post hole for the terminal post that goes up against the house, I ran into a possible problem. After digging about 12 inches down, I ran into concrete ( I assume this is from the garage's foundation and perhaps the basement as well), and it runs away from the house for about 11 inches. That means between the terminal post and the house would be an eleven inch gap. The fence is intended to keep the dogs inside, and that gap would be too much of a problem.
The fence fabric is 48" in height, and the post is 72". The terminal post needs to be 50" above ground with the remaining 22" buried. Do any of you have any suggestions on how to approach this situation?
