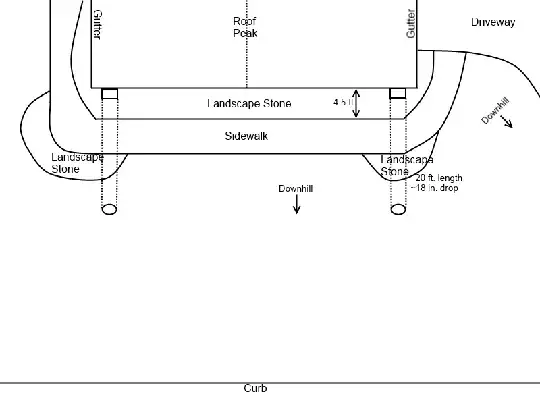
I have two downspouts whose discharge I need to get past a sidewalk. Currently for each gutter, corrugated tubing is run underground, under the sidewalk, for approximately 20 feet where it discharges out the side of the hill approximately 18 inches lower than where it began (it's not a steep hill).
One of the corrugated tubes has a dip in the middle of the run which isn't ideal, but otherwise during the summer this configuration works decently for the time being. In the winter is a different story--the tubing quickly freezes up and remains frozen until the ground thaws, which creates big problems for roof melt-water and early-Spring rainfall.
In the winter I've tried disconnecting the tubing and installing downspout extensions that run to the near edge of the sidewalk (so the water runs across the top of the sidewalk and then down the hill). This allows the gutters to drain properly but creates some icing problems on the sidewalk. I don't leave it like this in the summer due to concerns that the quantity of water will erode the concrete in those areas.
What is the ideal configuration so it can drain properly?
I've attached a crude sketch and a photograph.
Sketch:

Photo:

