4

I want to supply standby power to both units in a separately metered duplex from a single permanently installed generator. The cheapest way to do this is a pair of bog-standard ATSes and a smallish loadcenter to serve as a generator distribution board, vs. having independent generators for each unit.

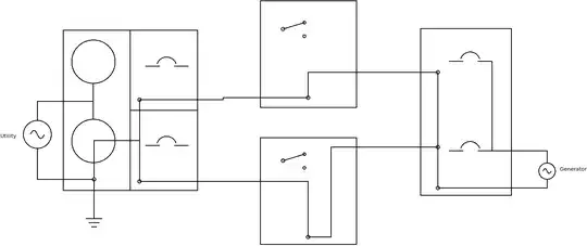
However, is there a Code-legal way to implement this, given that residential/light-duty ATSes are not available with a switched neutral pole (for instance, you cannot get an Asco 185 with a switched neutral), and that 300.3(B)/310.10(H) likely prohibits parallel neutral paths, such as the one shown in the diagram below? (Hots and grounds are omitted for clarity wherever possible, and so is everything downstream of the ATSes.)

diagram of looped neutral situation with service equipment, generator LC, and two ATSes

ThreePhaseEel
  • 87,685
  • 36
  • 144
  • 243

1 Answers1

4

Yes, this appears to be doable, but the parts required aren't quite standard

The good news is that this actually appears to be possible using inexpensive, readily obtainable parts; the only bad news is that it requires using them in a way that's technically off-label, but not in violation of the applicable listing requirements or product standard.

In particular, it turns out that the automatic transfer switches used for RV duty are listed to the same UL 1008, Eighth Edition standard requirements as any other ATS built and listed for optional standby service. However, they are constructed with a switched neutral pole so that they can isolate RVs from sloppy shore power wiring, which means they are basically precisely what we ask for: an inexpensive, readily obtainable, split-phase ATS with a switched neutral pole.

There are a few caveats to this, though. First off is that most of these ATSes have somewhat limited current ratings compared to their residential counterparts: 30A, two pole (single phase, 120V) and 50A, three pole (split phase, 120/240V) models are common, with 100A split-phase units seen only occasionally, while residential ATSes generally start at 100A and go up from there. Furthermore, they are largely limited to the minimum 5kA short-circuit current withstanding rating permitted by UL 1008, vs the 10kA expected of residential distribution equipment, and are also not service entrance rated, something that precludes them from being used in whole-house transfer. Given the existing downsides of whole-house transfer, though, and the fact that the standby loads would be on a feeder anyway, this is largely not an issue unless the utility-side feeder is rather short, and the 50A limitation is not a big deal for most reasonable standby loadsets anyway.

From here, labeling is the only remaining issue with the switch itself as RV ATSes have their dominant input marked for connection to the generator, assuming that the onboard power source is going to be more available/reliable than shore power is. Of course, this isn't true in our application, so we need to connect the utility feeder to the input labeled "generator" and the generator to the input labeled "shore power" in order to get correct transfer timings. (Otherwise, you'll have to wait 30-45sec for the switch to transfer to generator power when the utility source drops out.)

Finally, RV ATSes are designed to be used with separate generator control logic, so we'll have to supply that ourselves; at a minimum, we need to provide a NC (SPDT) delay-OFF relay with a 240V coil to make it so that a loss of utility power causes the relay contacts to drop closed after a short period of time (a second or two), closing the starting contacts on the genset so that it cranks over and runs. (A Macromatic TR-60621, paired with its mating socket and mounted in a suitable enclosure somewhere, is probably the easiest-to-find relay for this job.)

ThreePhaseEel
  • 87,685
  • 36
  • 144
  • 243