11

I'm working on a science project and there's one aspect of home wiring I need to find out (don't worry, I'm not messing with wiring - this is all on paper). Since 120V outlets in a home can be wired to either of the two 120V legs that come in from the power company, would it be a true statement that outlets on different breakers could be out of phase with each other? In other words if Bedroom 1 is tied to leg 1 and bedroom 2 is tied to leg 2 is it reasonable to assume that the sine waves measured from outlets in bedroom 1 will be out of phase with the sine waves measured from outlets in bedroom 2?

Michael Baker
  • 111
  • 1
  • 1
  • 4

6 Answers6

13

Sort of. It depends on your frame of reference.

If you're looking at the ungrounded (hot) conductor from each receptacle, you'll end up with a 240 volt circuit. Since it's a single circuit, it can't be out of phase with itself. If you hooked up an oscilloscope to the ungrounded (hot) conductor of each receptacle, you'd get a single 240 volt sine wave.

If you're looking at the two separate circuits (e.g. the ungrounded (hot) and grounded (neutral) conductor from each receptacle), then you'll end up with two 120 volt circuits 180° phase shifted from each other. If you hooked up the oscilloscope to the ungrounded (hot) conductor and grounded (neutral) conductors from each receptacle (4 leads instead of 2), you'd see two 120 volt sine waves 180° phase shifted from each other.

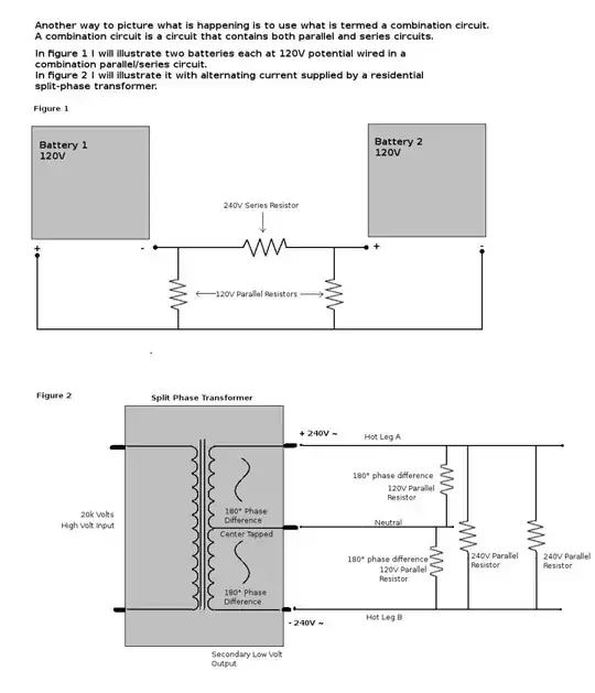
The two sine waves should look something like this.

sine waves from single split phase transformer

Because the waves are phase shifted 180°, the electrical potential between the legs (at the peak) will be 240 volts. While the potential between either line and "neutral", will be 120 volts.

If the waves were not phase shifted, they'd be at the same potential (or have 0 volts between them).

in phase sine waves

So while this is not a multi phase system, it's also not a simple single phase system. Technically it's known as a "Single split phase system".

All of this; of course, assumes that the ungrounded (hot) conductors are from different legs of the service.

Tester101
  • 133,087
  • 80
  • 327
  • 617
5

This is mainly a semantic question.

From an electrician's point of view, US household supply is a single 240V that can be split into two center-tapped hot legs.

From a mathematical or E&M point of view, the different legs have voltages that are 180º out of phase, and therefore I think it would be safe to call them two phases once they're separated.

(Left to the reader as an excercise: if you take a brick and cut it in half, do you have one brick or two bricks?)

Hank
  • 14,213
  • 10
  • 46
  • 48
1

In a typical residential North American 120VAC, the answer is NO

The reason is your house only receives one phase, and thus that one phase cannot be out-of-phase with itself. Changing your frame of reference (by measuring voltage from the N rather than across L1 and L2) does suddenly not make them out of phase.

If your real question is: "Will the voltage measured from N to L1 always be shifted 180 degrees compared to the voltage measured from N to L2?" then the answer to that is "Yes"

...however that fact alone is not enough for it to be considered a separate phase of power.

If you truly had two phases, then the voltage difference between them would vary and occasionally be 0.

RobotAndy
  • 353
  • 1
  • 2
  • 6
0

Voltages across each leg will be 180 deg out of phase....remember that voltage is a DIFFERENCE so if voltage across leg 1 to neutral (V1) is positive the other will measured negative (-V2) (out of phase by 180) relative to V1. (The numbers V1 and V2 are both positive numbers). Recall that voltage is a DIFFERENCE between two points. So we have V1- (-V2) which is 240 volts if both V1 and V2 are 120 volts. A Minus times a minus number is a positive number so V1-(-V2) = V1 + V2.

Richard MS physics, BSEE

0

Yes. Technically they're 180 degrees out of phase if the transformer is 120/240 split phase. The neutral is tapped at the center of the coil and each side of the neutral is wound 180 out of phase from the other. A 120/208Y transformer would have each phase 120 degrees out of phase.

Edit: Here is a recent diagram I made to help illustrate the concept. enter image description here

Kris
  • 4,865
  • 2
  • 14
  • 33
0

Using vector sums,

If we assume that V1 + V2 = VT

Where

V1 is from the center tap of the transformer to one phase (L1)

V2 is from the center tap of the transformer to the other phase (L2)

and L1 = 120 V at an angle of zero degrees

and L2 = 120 V at an angle of 180 degrees

and VT = the voltage sum of V1 and V2 (i.e., voltage across both phases)

Using Kirchoff's voltage law (i.e., going around the circuit)

VT = V1 + V2' = V1 + (-V2)

VT = (120, angle zero degrees) - (120, angle -180 degrees)

VT = (120, angle zero degrees) + (120, angle zero degrees)

VT = 240, angle zero degrees

The above math supports that the L1 and L2 are 180 degrees out of phase

JCS
  • 1